Precio del canon de Arrendamiento
Información de administración no disponible.
Inmueble verificado
Código del inmueble: AR-152966
Manterola Propiedades.
Ver otros inmuebles de la inmobiliaria- Oficinas
Arriendo de Oficina en Huechuraba, Cuidad Empresarial
Arriendo de Oficina en Huechuraba, Cuidad Empresarial
Descripción
-
Descripción:
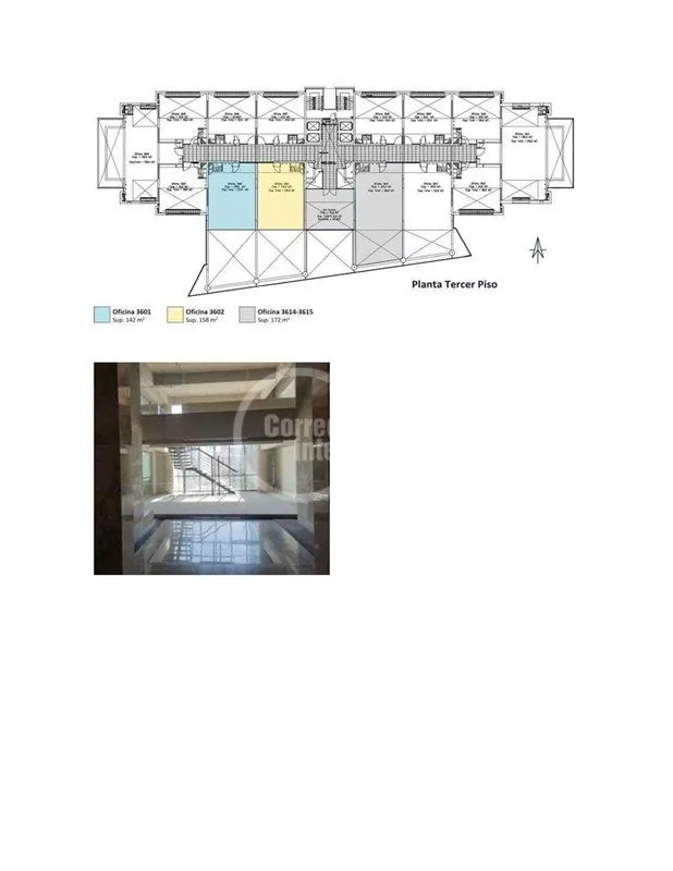
Excelente oportunidad de Arriendo: OFICINA EN VENTA E Arriendo EN CIUDAD EMPRESARIAL. Destacada oficina de dos pisos. Luminosa, cerca de restaurantes y comercio en la Cuidad Empresarial. Recepción, 1 oficina y todo el resto es planta libre en sus dos pisos. 2 baños. Cuenta con estacionamientos en venta a UF 350 c/u. + IVA (3 a 4 estacionamientos) UF 0,23 el mt2 Bodega a UF 25 m2 c/u. ( 3 bodegas)
Show all description
Propiedades similares en la zona
Análisis de mercado
Características Principales
- Área, m²: 237 m²
- Dormitorios: 1
- Baños : 2
Ubicación
- País / Región: Chile
- Estado: Región Metropolitana
- Ciudad / Municipio: Huechuraba
Características Apartaestudios
- Características Interiores: Bodega, Estadio, Portería / Recepción, Recepción / Lobby
- Características Sector: Zona comercial
