Precio del canon de Arrendamiento
Más $5.441.607 Admin.
Inmueble verificado
Código del inmueble: AR-177740
Velisa FR
Ver otros inmuebles de la inmobiliaria- Oficinas
- Arriendo
VENDO OFICINAS EN C C AVE. CHILE
VENDO OFICINAS EN C C AVE. CHILE
Descripción
-
Descripción:
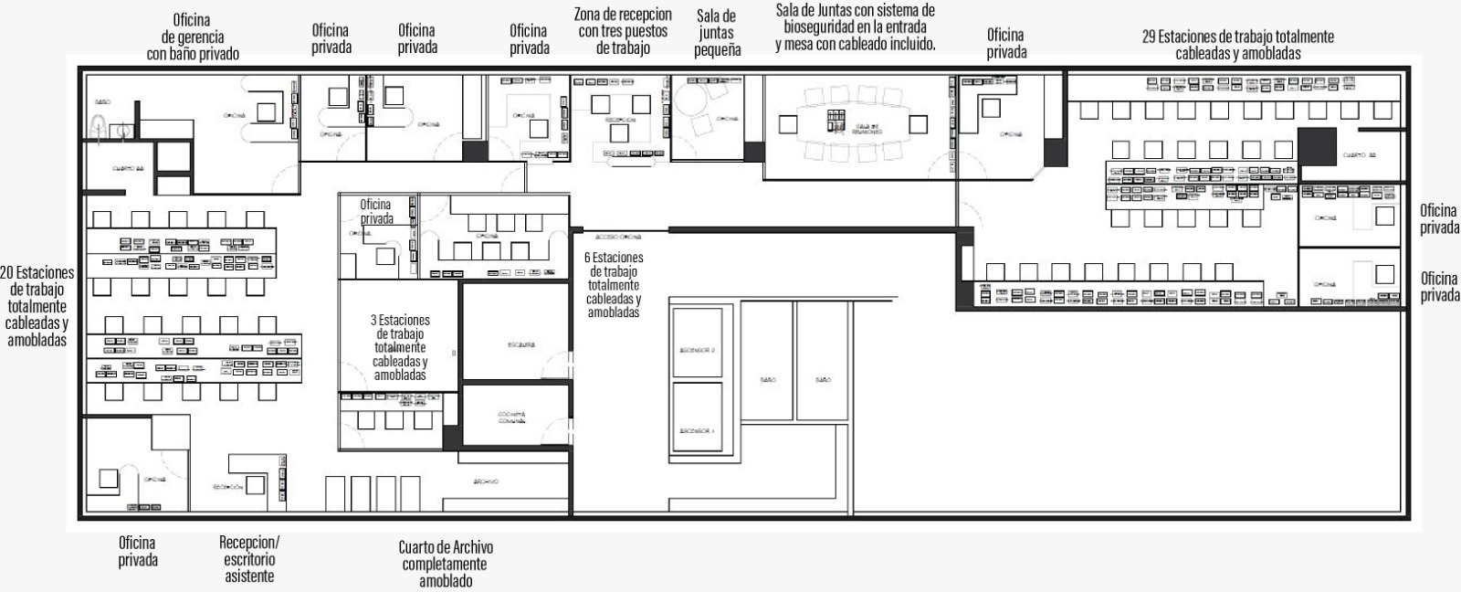
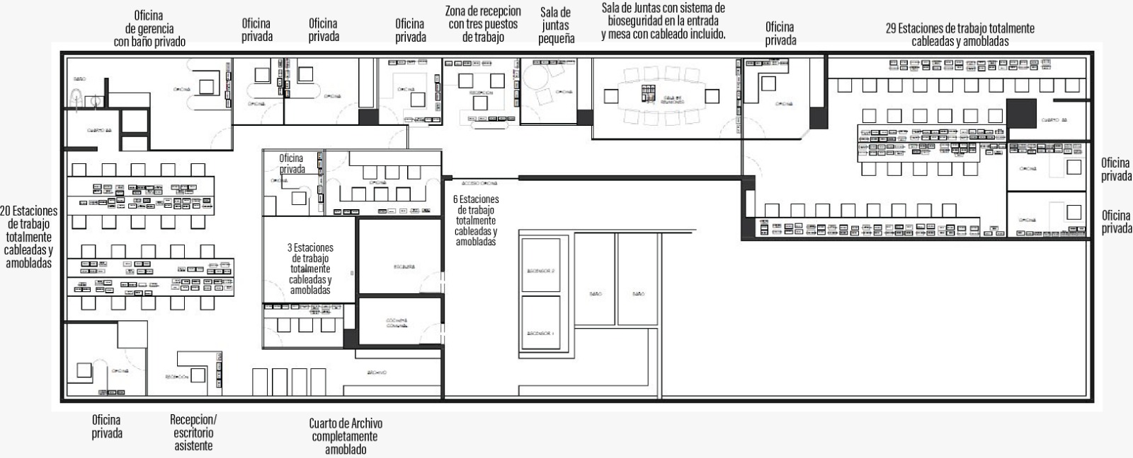
Ubicadas dentro del CC Avenida de Chile, en la Torre A. Con vista amplia, rodeada de amplios ventanales por los 4 costados garantiza a sus ocupantes una magnifica iluminacion y ventilacion naturales que proporcionan un ambiente de bienestar en el trabajo. Con divisiones modulares que se acomodan a las necesidades del usuario su organizacion actual ofrece recepcion, 77 puestos de trabajo, cableado estructurado, 10 oficinas independientes, la de gerencia con baño privado, 3 salas de juntas, una de ellas con video beam, oficina de gerencia con baño privado, control de ingreso tanto en el acceso al edificio como el ingreso a la oficina, 2 baterias de baños en piso, 10 garajes propios de la oficina
Propiedades similares en la zona
Análisis de mercado
Características Principales
- Habitaciones: 0
- Baños : 6
- Parqueaderos: 10
Ubicación
- País / Región: Colombia
- Departamento: Bogotá
- Ciudad / Municipio: Bogotá